Maison à vendre – Hyper charmante avec un fort potentiel d’agrandissement – Buix, JU

  • CHF 420 000.-
6, Route de France, Buix, Basse-Allaine, District de Porrentruy, Jura, 2925, Schweiz/Suisse/Svizzera/Svizra

Maison à vendre – Hyper charmante avec un fort potentiel d’agrandissement – Buix, JU

Buix, Suisse
  • CHF 420 000.-

Général

  • Residentiel
  • Property Type
  • 6
  • Chambres
  • 3
  • Les salles
  • 417
  • m2
  • 1107
  • Lot m2
  • CHF 420 000.-

Description

Maison à Buix à vendre avec du potentiel !

Du potentiel ? OUI elle en a, comme tous les biens immobilier vous me direz…

Mais voici ce qu’il faudrait faire avec cette belle maison:

ACHETEZ-LÀ, DOUBLEZ LA SURFACE PUIS LOUER LE BIEN RENOVÉ ou VENDEZ LE. 

Nous vous accompagnons dans toutes les démarches, essayez-vous et vous verrez!

Maison familiale immédiatement habitable (ambiance chaleureuse, duplex fonctionnel) + grande zone à rénover avec volumes et hauteurs > 3,50 m.
Extérieurs : immense potager, jardin jusqu’à la rivière (maison hors zone inondable d’après nos constats), garage en bout de parcelle.
Sous-sol : env. 150 m² exploitables (empreinte de la maison), idéal atelier/garage + buanderie/technique.
Surfaces – chiffres clés
Surface habitable chauffée & isolée (duplex actuel)

RDC (séjour 31 + cuisine 13 + WC 2 + hall 9) = 55,0 m²
Étage (ch. 17 + ch. 15 + ch. 11,3 + SDB 4,2 + palier 7) = 54,5 m²

Total habitable chauffé estimé : 109,5 m² ≈ 110 m²
Surface isolée seulement, sous toiture (non chauffée)

Espace “loft” mesuré : 41,0 m² (isolé, non chauffé, chauffable facilement)
Total isolé non chauffé sous toiture (selon nos plans et relevés internes) : > 100 m² (estimation globale, à confirmer au métrage final)
Sous-sol (utilisable)

Volume utile estimé : ≈ 150 m²
(ancienne estimation partielle ~86 m² ; l’empreinte complète offre env. 150 m² exploitables)
Détail de la partie à rénover (rez et volumes hauts)
Calcul des pièces communiquées :

6,00 × 4,00 = 24,00 m²
3,40 × 4,75 = 16,15 m²
3,48 × 3,35 = 11,66 m²
2,34 × 5,24 = 12,26 m²
3,89 × 2,00 = 7,78 m²
2,36 × 2,00 = 4,72 m²

Total à rénover (ces pièces) : ≈ 76,6 m²
Atouts : hauteurs > 3,50 m, grandes ouvertures, esprit volume/lumière, idéal pour créer seconde habitation, atelier, ou logement locatif.

 

Points forts:
Deux logiques d’usage : habiter tout de suite + développer le potentiel (division possible gauche/droite).
Volumes remarquables (hauteurs, ouvertures), isolation déjà réalisée sous toiture, raccordement chauffage faisable.
Grand extérieur productif (potager), garage inclus en bout de parcelle.

Détails

  • ID propriété JUR-12985
  • Prix de vente CHF 420 000.-
  • Surface 417 m2
  • Surface terrain 1107 m2
  • Chambres 6
  • Pièces 10,0
  • Salles de bains 3
  • Garage 1
  • Statut de la propriété A vendre
  • Type de propriété Residentiel

Détails additionnels

  • Place de parc extérieure 4 places
  • Atelier ? Intérieur, sous-sol
  • Jardin ? Oui
  • Potager ? Oui
  • Chauffage ? Mazout

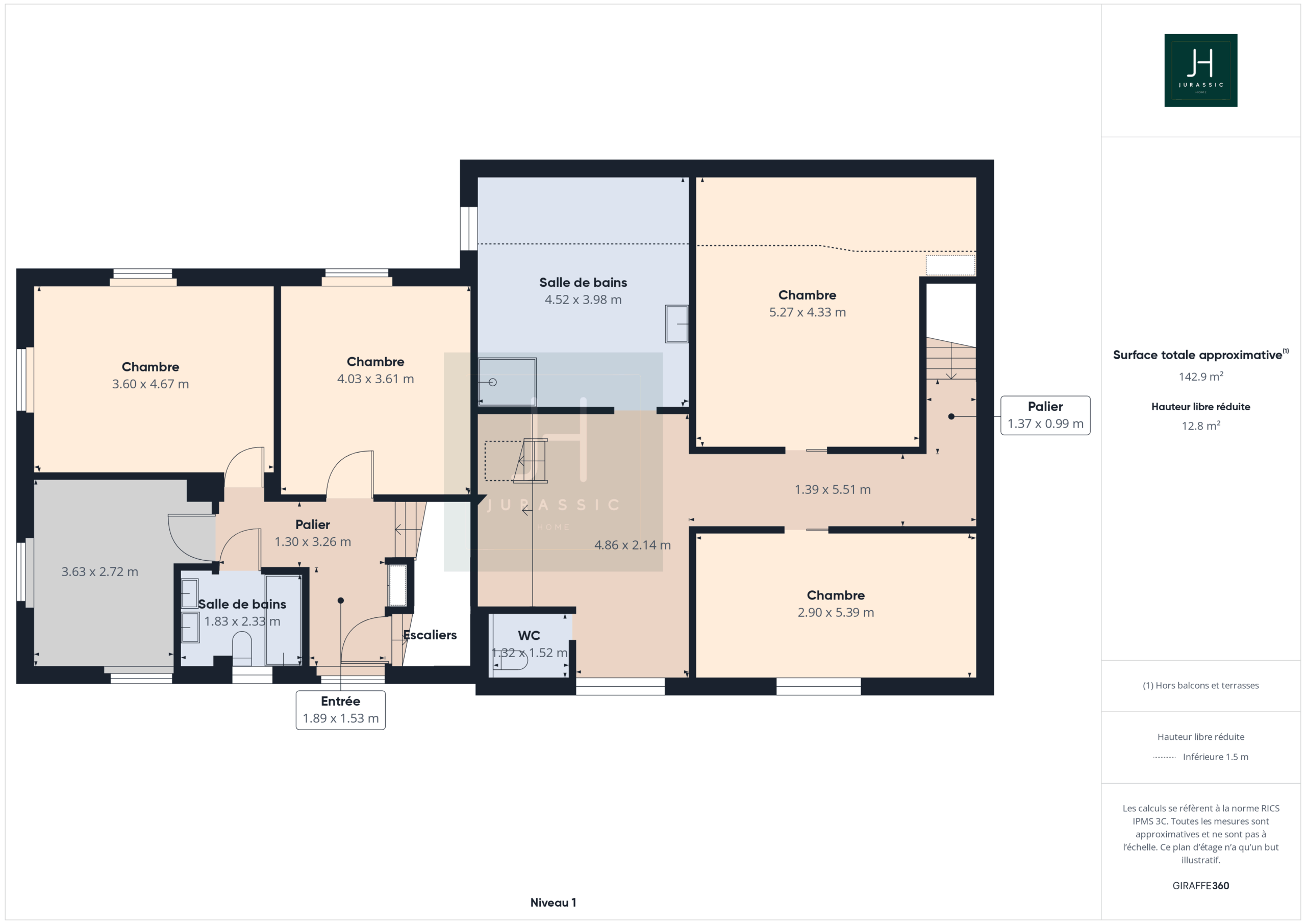
Plans d'étages

image

Description:

image

Description:

image

Description:

image

Description:

Tour Virtuel 360°

Programmer une visite

Type de visite

Information de contact

Voir les biens
Xavier Gillot

Demande de renseignements sur ce bien

Listing similaire

Programmer une visite

Type de visite

Compare listings

Comparer
Xavier Gillot
  • Xavier Gillot